Project
Building Bridges
Year
2024
Information
1. Price Buildner Microhome Competition #6
Description
Refugee routes exist all over the world, as many people have to flee their homes driven by the desperation to escape violence, effects of climate change, persecution, poverty and war. The waste disposal routes have the same course as the refugee routes, but in opposite directions...

Bridges get created through combining multiple separate cabins. The act of building habitats together not only bridges physical gaps but also bridges hearts and minds, creating a thriving community where refugees find solace, mutual aid, and the opportunity to rebuild their lives with a renewed sense of purpose and collective strength.
Material reuse, in which resources are kept within the cycle for as long as possible by being reused or further used more frequently, holds great potential for combating climate change and creating a more sustainable future. Existing waste from industrialized countries is transported worldwide to emerging countries and deposited there. In line with the concept of urban mining, which describes the recovery of valuable resources and materials from existing urban structures, materials and waste are recycled.
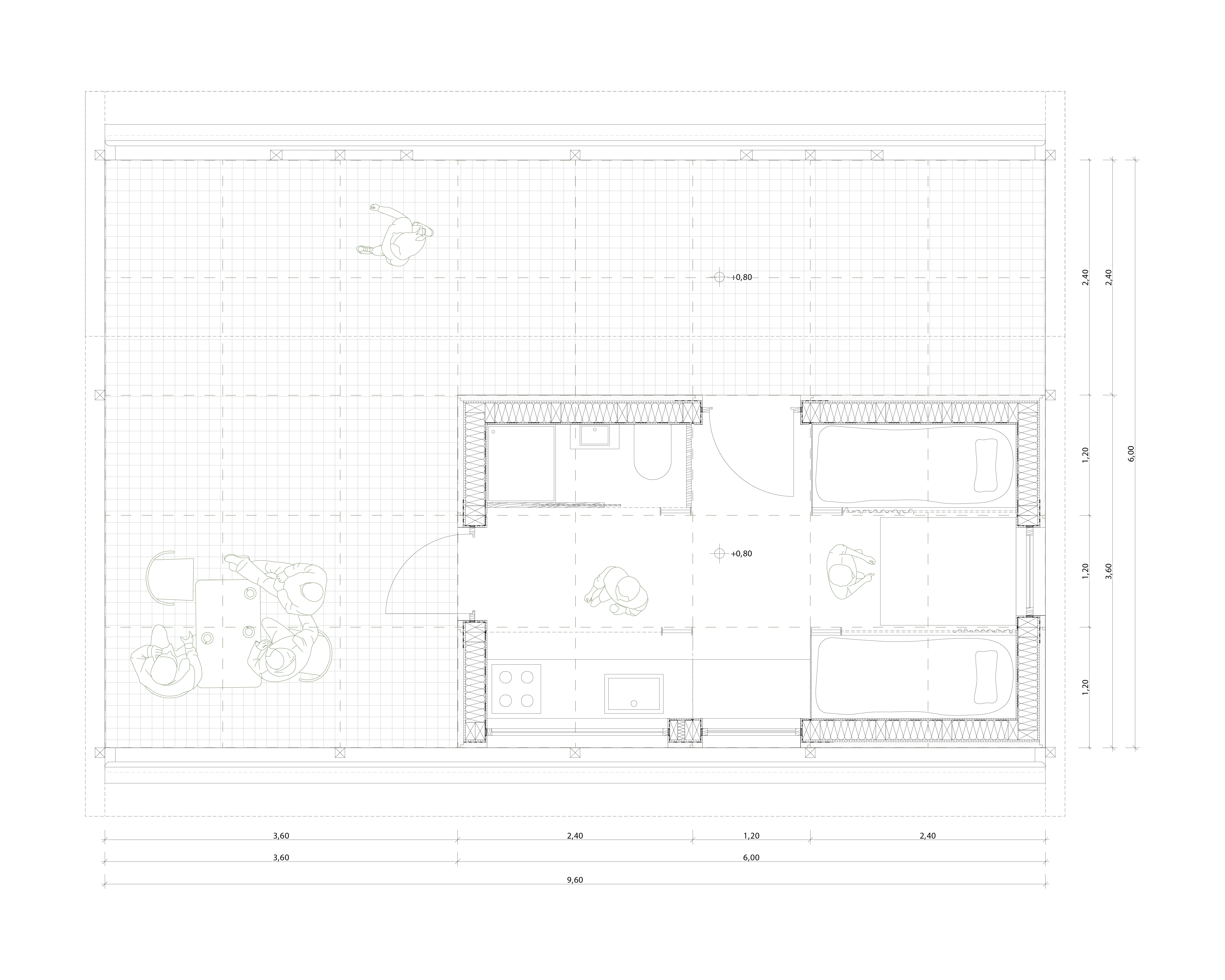
Modular systems divided in a 1,20m x 1,20m grid, together form complex structures. These are broken down into smaller, self-contained units or modules that can be easily assembled, disassembled or replaced as needed.
One truckload carries all modules and materials, which can be stowed together for seamless and easy transport.

Visuals

Drawings