Project
Coral Scraper
Year
2023
Information
eVolo Skyscraper Competition
Description
A futuristic skyscraper of the future was designed as part of this international competition. The competition deals with the question of what a skyscraper could look like in 100 years. The participants have the greatest possible freedom to approach the project in the most creative way.

Coral reefs are complex marine ecosystems that harbor enormous biodiversity and play an important role in coastal stabilization and carbon cycling.
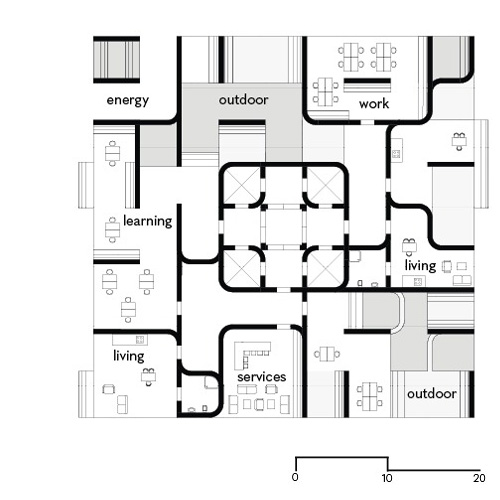
The Coralscraper we designed consists of only three parts (in the shape of the three letters I, L and C), which are made of calcium carbonate and can be 3D printed. These three parts can be assembled into 8 different modules that serve different functions (e.g. living, working, public green space, etc.).
Below the water surface, the Coralscraper provides an ideal artificial settlement space for new coral reefs and counteracts their threat.
Above the water surface, new habitat is created in front of large coastal cities threatened by overpopulation and rising sea levels.
A crane in the center of the building allows it to be successively expanded as needed.

Visuals

Drawings